近年來,石材幕墻由于裝飾效果好,形式變化多樣而被廣泛采用。今天,我們主要為大家簡述一下后背栓接式敞縫石材幕墻的施工工藝。
1.工藝原理
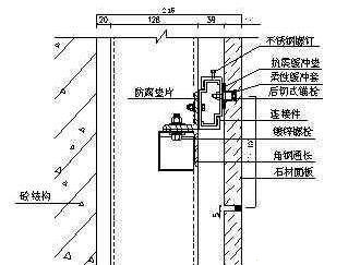
石材幕墻背栓式干掛技術采用柱錐式鉆頭和專用設備在石材的背面鉆孔,并能使底部擴孔,可保證準確的鉆孔深度尺寸。錨栓不受膨脹力裝人圓錐形鉆孔內,按規定的扭矩擴壓使擴壓環張開并填滿孔底,形成凸形結合。錨栓在背部固定,從外面看不見。安裝時外墻上的埋件與豎框的角碼焊接,背栓橫框用螺栓與豎框連接,通過背栓將石材固定在橫框上。
2.工藝流程測量放線
豎向構件(析架式柱)安裝——安裝防水板——安裝石材板塊-——定位、調平——注膠和清潔。
(1) 測量主線以泌量基準點坐標為基準,利用激光經緯儀、鉛垂儀垂直測量,并傳遞至各樓層,在各層樓面重新測設井字形線控制網,將其平移至外梁上。作豎向測點聯結,可建立垂直基準線并由此可構成立面控制網,將其平移至立面梁柱,確定各樓層的固定件位置并做好標記,各層立面以此標記為準,采用鋼絲線確定立面位置,各樓層的立柱以此立面位置為準進行安裝。
(2)豎向構件、析架或柱的安裝在連接構件安裝后復測定位偏差的基礎上,進一步根據幕墻基準面調整安裝衍架或柱及柱梁體系柱,使其精確就位,分段控制,以免誤差積累。將安裝允許偏差控制在2mm以內。
(3)安裝防水板:防水板定位以放在預埋件上的線為準,必須嚴格控制兩個方向的位置誤差和角度誤差,安裝時兩塊鐵碼的距離必須一致,并進行表面涂刷防腐油漆處理。凡是誤差超過規范規定的必須進行修復校正處理。
(4)石材板塊安裝前應根據石材施工排板圖檢查石板與圖是否相符,用環氧樹脂注滿槽坑,平穩抬起石板,將槽口對準已固定在橫梁上的扣件緩緩擂人,再將另一對扣件插人上部槽內,使石板稍向前傾,當扣件掛上橫梁后,再讓石板恢復到垂直狀態,并將扣件向下壓實,檢查調整石板的垂直水平進出位置,使其符合立面控制線。
(5)定位、調平:板材安裝過程中,按照“橫平豎直”的要求用垂線垂直調平,垂縫偏差值不能超過(或少于)2mm/m。用鋼絲線拉直,用插尺檢查豎面偏差值不能(超過或少于)3mm/m,橫縫用平水管調平,偏差值不能超過(或少于)2mm/m。
(6)注膠和清潔:幕墻安裝完以后,先在縫隙兩邊貼上分色紙,為使擠膠厚度達到設計要求(4mm一6mm),在擠膠之前先在縫隙內填上發泡膠條,然后從上往下擠密封膠,再用膠刮板刮平,使表面達到平滑,確保擠膠處清潔于凈,并在規定時間內完成擠膠操作。
今天的內容就到這里了,這些知識希望能對大家起到一定的作用。最近卡特能幕墻正在征集幕墻相關的文章,或是美文、或是與幕墻相關的故事、或是技術類的文章,題材不限。如果大家有興趣,歡迎后臺聯系小編,我們一起將更多的知識分享給大家。






加載中...